Quoterplan avec DeviSOC
Sur cette page vous allez apprendre à :
Comprendre comment envoyer votre bibliothèque DeviSOC vers Quoteprlan
Affecter vos ouvrages élémentaires à des mesures via Quoterplan
Générer un rapport de quantités via Quoterplan et l'intégrer dans DeviSOC
Introduction au chainage Quoterpla
DeviSOC est maintenant compatible avec les métrés sur plans PDF !
Calculez vos dimensions et quantités sur plans PDF à partir du logiciel Quoter Plan (surface, longueur…) et associez des ouvrages d’estimation à vos mesures.
Grâce au module Quoterplan disponible sur DeviSOC 5.37 en option, bénéficiez des fonctionnalités suivantes sur DeviSOC :
Import des relevés de quantités directement dans votre affaire
Création automatique des ouvrages élémentaires d’après les items d’estimation du relevé graphique
Affichage du sous-détail des métrés par linéaire ou surface
Reprise des prix depuis la base Quoter plan
Préparer la bibliothèque DeviSOC à Quoterplan
Avant toute chose, il est convenu de préparer la bibliothèque pour son utilisation dans Quoterplan. Pour cela, nous allons voir comment assigner les codes CAO et exporter la bibliothèque vers Quoterplan. Dans cet exemple, nous utiliserons la bibliothèque EcoBIBLE, mais le processus est le même pour votre propre bibliothèque.
A noter que la bible utilisée doit être obligatoirement en format .DVS
Ouvrez votre DeviSOC.
Ouvrez la bibliothèque EcoBIBLE (ou celle que vous voulez utiliser)
Dans le navigateur, aller dans le sous-menu « Outils Bibliothèque »
Sélectionnez « Saisie code CAO »
Le style « Saisie code CAO » permet de transformer votre bible en bibliothèque d'ouvrage utilisable pour Quoterplan.
Avant de commencer à numéroter, il est primordial d'avoir vos ouvrages élémentaires de niveau 9 rangés dans un chapitre de niveau 3 au minimum, sinon, Quoterplan aura des soucis à la lecture de votre bibliothèque.

Le but maintenant est de générer les codes CAO de votre bible sur les positions niveaux 9. Pour cela :
Vérifiez que vous êtes en affaire courante.
Cliquez sur le bouton “Générer tous les codes CAO de l'affaire”.

Il est primordial d’avoir réalisé cette opération avant tous travaux sur le logiciel Quoterplan afin que l’import des données quantitatives de Quoterplan vers DeviSOC fonctionne correctement.
Une fois les codes CAO affectés à vos ouvrages de niveau 9, il va falloir exporter la bible ver Quoterplan. Pour cela :
Cliquez sur le menu Import/Export puis sur le bouton Export de Quoterplan

Une fenêtre s'ouvre avec deux champs à vérifier :
Le chemin de la bibliothèque DeviSOC à exporter (par défaut votre bible renseigné dans les préférences DeviSOC)
Le répertoire des données Quoterplan (à modifier si dossier personnalisé, par défaut le dossier Documents/Quoterplan/Mes données)

Si les éléments renseignés sont correctes, cliquez sur “Exporter”.
Une fois l'export terminé, cliquer sur le bouton “OK” :

Les manipulations sur DeviSOC sont à présent terminé, nous pouvons maintenant passer sur Quoterplan. Comme indiqué, si Quoterplan est déjà ouvert, il faut le redémarrer pour le bon fonctionnement de la bible.
Utiliser vos items d'estimation pour créer un rapport quantité dans Quoterplan
Le terme item d'estimation dans Quoterplan correspond au ouvrages élémentaires dans DeviSOC.
Démarrez Quoterplan, créez votre projet, importez vos plans 2D puis créez un métré.
Dans cette exemple, nous partirons sur une surface de sol.
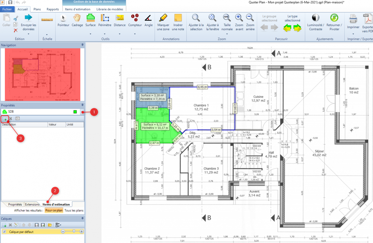
La mesure étant placée sur votre plan :
Sélectionnez-la depuis la fenêtre “Propriété” à gauche via le menu déroulant prévu à cet effet.
Cliquez sur l'onglet “Item d'estimation” en bas.
Cliquez sur le bouton


Vous devriez voir apparaitre votre bibliothèque dans la fenêtre.
Allez cherchez l'ouvrage élémentaire voulu pour l'appliquer à votre mesure.

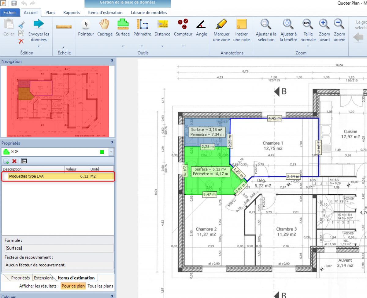
En sélectionnant l'ouvrage élémentaire de vos bible, le logiciel vous demande maintenant de renseigner la formule associée à votre métré.
Vous pouvez, à partir de là, effectuer vos calculs selon ce que vous voulez récupérer comme information.
Des formules prédéterminées sont disponibles en accès rapide (encadré (3) de l'image)
Une fois terminé, appuyez sur “OK”

Votre item d'estimation est maintenant associée à votre métré que vous pouvez vérifier ici :

Importer le rapport Quoterplan dans DeviSOC
Pour générer le rapport quantité de Quoterplan :
Allez sur l'onglet “Rapports”
Sélectionnez le rapport “Estimation”
Cliquez sur le bouton“Exporter en XML”

Si votre ordinateur vous demande avec quel logiciel ouvrir le rapport XML généré, annuler juste, il n'y en a pas besoin.
Le rapport étant généré, revenez sur DeviSOC, créez votre affaire, puis :
Allez dans l'onglet “Import/Export”
Cliquez sur le bouton “Import Quoterplan”
Dans “Importer le fichier Quoterplan”, allez chercher votre fichier XML (par défaut dans Documents/Quoter Plan/Mes Rapports)
Avant de cliquer sur “Importer”, vérifiez que la bible renseignée et l'affaire soient correctement renseignées.

Votre affaire va maintenant se générer automatiquement selon le rapport importé :

Mis à jour